![]() |
| Amazing Home: Incredible Modern Glen 2961 House by SAOTA, Cape Town, South Africa © Adam Letch |
Here it is! Another masterpiece of modern architecture, designed by famous SAOTA. This amazing home is called Glen 2961 House, located in Oranjezicht neighborhood of Cape Town, where most of SAOTA's incredible work is built. This project was built with little help from Three 14 Architects.
"The client appointed SAOTA – Stefan Antoni Olmesdahl Truen Architects to complete the design of a new home. The clients bravely followed their architect’s advice to see the bigger picture and re-start on a clean slate.
The new home was to respond to the site and garden closely, to allow enough space for the family’s diverse requirements – whilst create separate private spaces within the house, and respond to the fierce winds which seasonally hurtle down Table Mountain yet provide a relaxed, homely character in the spirit of Higgovale. The clients selected to proceed with the Design Development and project construction with Three14 Architects.
The principal objectives in the design approach was to screen the heart of the home from the South Easterly and create large semi-enclosed gardens which allow the 2 lower levels of the house to seamlessly connect to garden and terraces at all times."
-SAOTA
![]() |
| Amazing Home: Incredible Modern Glen 2961 House by SAOTA, Cape Town, South Africa © Adam Letch |
![]() |
| Amazing Home: Incredible Modern Glen 2961 House by SAOTA, Cape Town, South Africa © Adam Letch |
![]() |
| Amazing Home: Incredible Modern Glen 2961 House by SAOTA, Cape Town, South Africa © Adam Letch |
![]() |
| Amazing Home: Incredible Modern Glen 2961 House by SAOTA, Cape Town, South Africa © Adam Letch |
![]() |
| Amazing Home: Incredible Modern Glen 2961 House by SAOTA, Cape Town, South Africa © Adam Letch |
![]() |
| Amazing Home: Incredible Modern Glen 2961 House by SAOTA, Cape Town, South Africa © Adam Letch |
![]() |
| Amazing Home: Incredible Modern Glen 2961 House by SAOTA, Cape Town, South Africa © Adam Letch |
![]() |
| Amazing Home: Incredible Modern Glen 2961 House by SAOTA, Cape Town, South Africa © Adam Letch |
![]() |
| Amazing Home: Incredible Modern Glen 2961 House by SAOTA, Cape Town, South Africa © Adam Letch |
![]() |
| Amazing Home: Incredible Modern Glen 2961 House by SAOTA, Cape Town, South Africa © Adam Letch |
![]() |
| Amazing Home: Incredible Modern Glen 2961 House by SAOTA, Cape Town, South Africa © Adam Letch |
![]() |
| Amazing Home: Incredible Modern Glen 2961 House by SAOTA, Cape Town, South Africa © Adam Letch |
![]() |
| Amazing Home: Incredible Modern Glen 2961 House by SAOTA, Cape Town, South Africa © Adam Letch |
![]() |
| Amazing Home: Incredible Modern Glen 2961 House by SAOTA, Cape Town, South Africa © Adam Letch |
![]() |
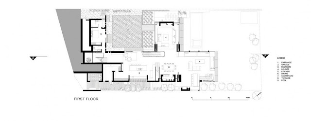
| Amazing Home: Incredible Modern Glen 2961 House by SAOTA, Cape Town, South Africa © SAOTA |
![]() |
| Amazing Home: Incredible Modern Glen 2961 House by SAOTA, Cape Town, South Africa © SAOTA |
![]() |
| Amazing Home: Incredible Modern Glen 2961 House by SAOTA, Cape Town, South Africa © SAOTA |
![]() |
| Amazing Home: Incredible Modern Glen 2961 House by SAOTA, Cape Town, South Africa © SAOTA |
You have read this articleDream Homes /
Houses /
Interior Design /
South Africa
with the title Incredible Modern Glen 2961 House by SAOTA, Cape Town, South Africa . You can bookmark this page URL http://architectures-design.blogspot.com/2012/10/incredible-modern-glen-2961-house-by.html. Thanks!
Write by:
CB Market - Saturday, October 27, 2012



















Comments "Incredible Modern Glen 2961 House by SAOTA, Cape Town, South Africa "
Post a Comment